912 Loyola Way, Livermore, CA 94550
Toggle Navigation
Images
Floor Plans
Map
912 Loyola Way
Livermore, CA 94550
Scroll to Content
Images
Slideshow
Photo Grid
Hide
Previous
Next
Show more
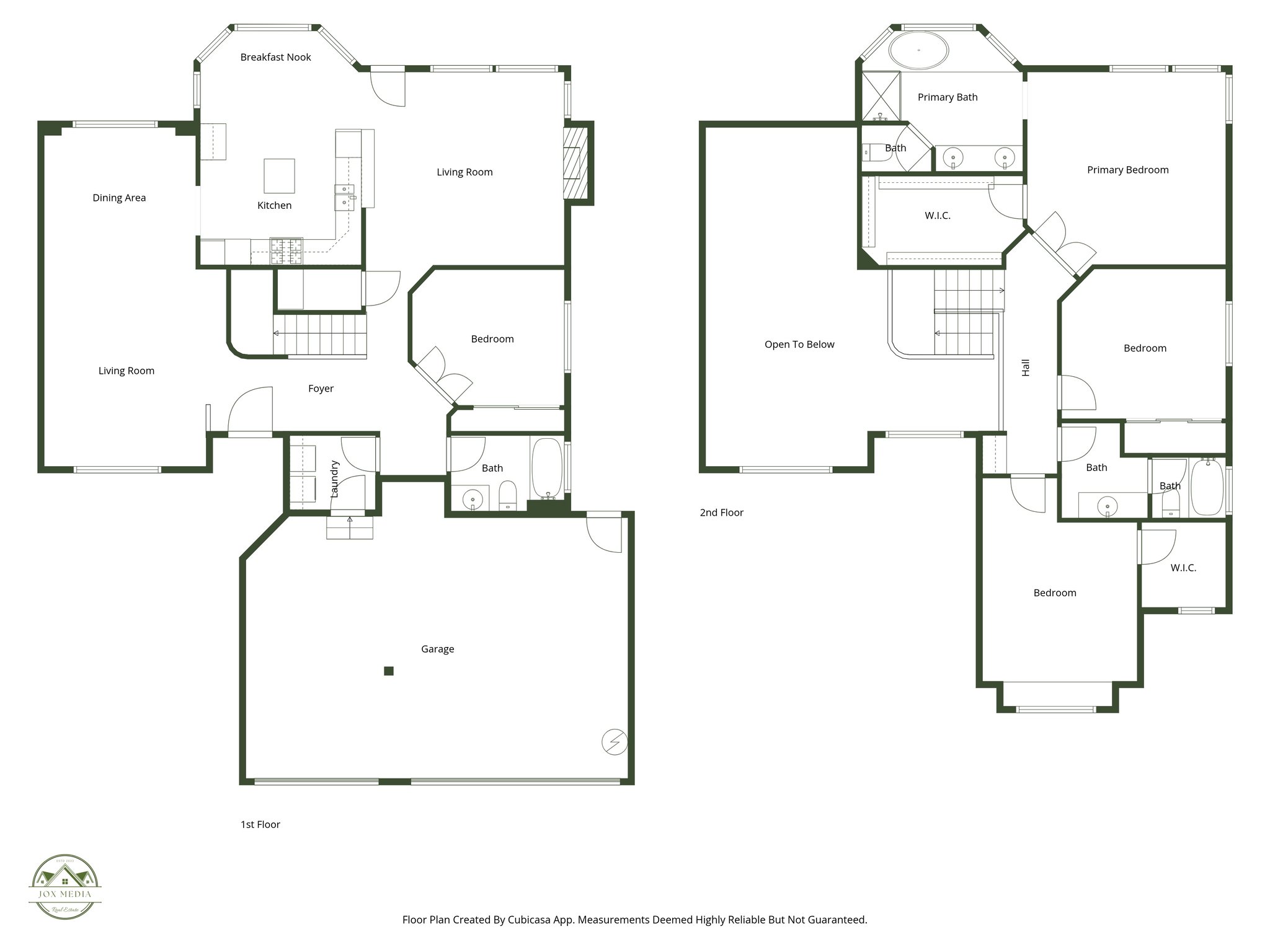
Floor Plans
Slideshow
Photo Grid
Hide
Previous
Next